-
4
-
3
-
9
72 Cooper Avenue, ALTONA NORTH VIC 3025
2,650sqm Corner Landmark Ready for Reinvention
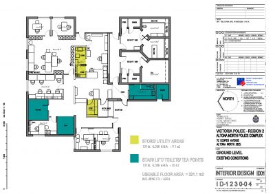
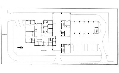
A rare and remarkable opportunity now presents itself at 72 Cooper Street, Altona North - the former Altona North Police Station, occupying a substantial 2,650sqm (approx.) corner allotment with unrivalled potential in one of Melbourne's most rapidly evolving growth pockets.
With over 40 existing rooms, solid brick construction and a wide-reaching internal footprint, this property offers exceptional scope for adaptive re-use, refurbishment, or complete re-envisioning (STCA). Currently held as Crown Land with residential zoning, the site unlocks an array of future pathways from community hubs, specialist accommodation, • boarding facilities, wellness or educational centres, to bold residential redevelopment - all subject to council approval.
Developers, community groups, investors and visionary creators will immediately recognise the magnitude of what's on offer here: an expansive, flexible building envelope paired with a premier corner position.
• Massive 2,650sqm (approx.) corner block offering outstanding visibility
• Over 40 internal rooms within the existing structure
• Residential zoning offering scope for subdivision or multi-dwelling development (STCA)
• First freehold title will be issued on sale and there is no stamp duty payable
• Scope to refurbish, repurpose or reinvent for a range of community, commercial, educational or residential uses (STCA)
• Ideal for boarding, community gathering, training facilities, support services, or creative reuse (STCA)
• Unmatched Positioning
Set within one of the Inner West's most strategically connected corridors, the site enjoys effortless access to:
• Melbourne CBD - approx. 10km away
• Williamstown & Altona beaches - minutes from the shoreline
• Geelong corridor - instant connection via the West Gate Freeway
• Major retail and lifestyle hubs including Millers Junction, Altona Gate Shopping Centre, Borrack Square, and The Circle
• Surrounded by established suburbs such as Newport, Spotswood, Williamstown, Yarraville and South Kingsville
Its centrality to public transport, major arterial roads and key employment precincts amplifies its appeal for both redevelopment and adaptive re-use.
Whether you envision a community-focused facility, boutique residential project, or a transformative redevelopment, this iconic Altona North holding delivers the scale, flexibility and location to bring bold ideas to life.
Secure a generational opportunity in one of Melbourne's most versatile and high-growth pockets.
Disclaimer: All information provided has been obtained from sources we believe to be accurate, however, we cannot guarantee the information is accurate and we accept no liability for any errors or omissions (including but not limited to a property's land size, floor plans and size, building age and condition). Interested parties should make their own enquiries and obtain their own financial and legal advice.
With over 40 existing rooms, solid brick construction and a wide-reaching internal footprint, this property offers exceptional scope for adaptive re-use, refurbishment, or complete re-envisioning (STCA). Currently held as Crown Land with residential zoning, the site unlocks an array of future pathways from community hubs, specialist accommodation, • boarding facilities, wellness or educational centres, to bold residential redevelopment - all subject to council approval.
Developers, community groups, investors and visionary creators will immediately recognise the magnitude of what's on offer here: an expansive, flexible building envelope paired with a premier corner position.
• Massive 2,650sqm (approx.) corner block offering outstanding visibility
• Over 40 internal rooms within the existing structure
• Residential zoning offering scope for subdivision or multi-dwelling development (STCA)
• First freehold title will be issued on sale and there is no stamp duty payable
• Scope to refurbish, repurpose or reinvent for a range of community, commercial, educational or residential uses (STCA)
• Ideal for boarding, community gathering, training facilities, support services, or creative reuse (STCA)
• Unmatched Positioning
Set within one of the Inner West's most strategically connected corridors, the site enjoys effortless access to:
• Melbourne CBD - approx. 10km away
• Williamstown & Altona beaches - minutes from the shoreline
• Geelong corridor - instant connection via the West Gate Freeway
• Major retail and lifestyle hubs including Millers Junction, Altona Gate Shopping Centre, Borrack Square, and The Circle
• Surrounded by established suburbs such as Newport, Spotswood, Williamstown, Yarraville and South Kingsville
Its centrality to public transport, major arterial roads and key employment precincts amplifies its appeal for both redevelopment and adaptive re-use.
Whether you envision a community-focused facility, boutique residential project, or a transformative redevelopment, this iconic Altona North holding delivers the scale, flexibility and location to bring bold ideas to life.
Secure a generational opportunity in one of Melbourne's most versatile and high-growth pockets.
Disclaimer: All information provided has been obtained from sources we believe to be accurate, however, we cannot guarantee the information is accurate and we accept no liability for any errors or omissions (including but not limited to a property's land size, floor plans and size, building age and condition). Interested parties should make their own enquiries and obtain their own financial and legal advice.
