-
2
-
2
-
2
24 Blyth Street, ALTONA VIC 3018
A Corner Site Of Compelling Appeal
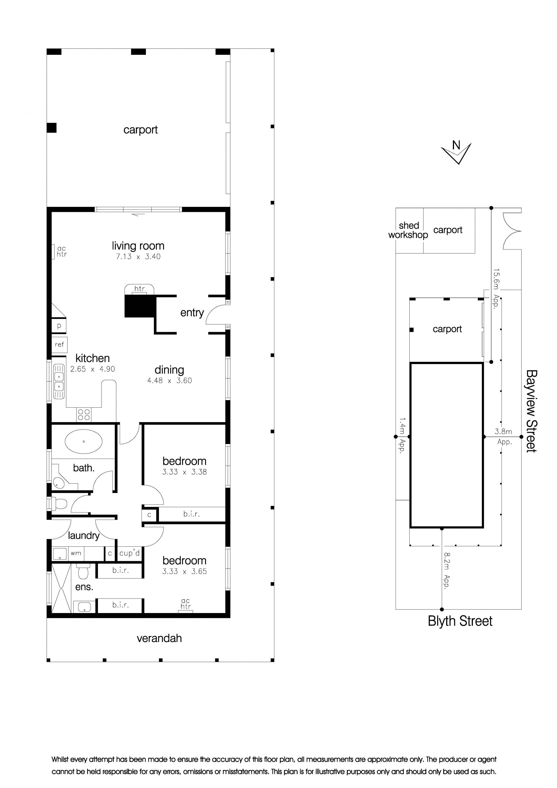
The two bedroom, two bathroom format of this bright, inviting home delivers single level ease in a location that puts all of Altona's renowned attractions at your immediate disposal. The beach is within easy reach, Pier Street's shops and cafés can be walked to and Altona station trains offering a convenient commute to the city are always conveniently accessed. Such lifestyle amenity distinguishes an address that appeals equally to first home buyers, downsizers and investors - and ensures enduring success.
• Impeccably preserved original single level spaces
• Corner site with second frontage to Bayview Street
• Classically comfortable, readily renovated, STCA
• Generous open-plan living and dining proportions
• Kitchen fitted with plentiful timber toned cabinetry
• Main bedroom and fully-tiled dual shower ensuite
• Large second bedroom, fully tiled main bathroom
• Substantial paved alfresco area/double carport
• Low-maintenance landscaped outdoor environs
Current day spaces on immediate appeal, matched by rewarding scope to refresh, renovate or re-invent in a position of exceptional bayside lifestyle appeal.
Disclaimer: All information provided has been obtained from sources we believe to be accurate, however, we cannot guarantee the information is accurate and we accept no liability for any errors or omissions (including but not limited to a property's land size, floor plans and size, building age and condition). Interested parties should make their own enquiries and obtain their own financial and legal advice.
• Impeccably preserved original single level spaces
• Corner site with second frontage to Bayview Street
• Classically comfortable, readily renovated, STCA
• Generous open-plan living and dining proportions
• Kitchen fitted with plentiful timber toned cabinetry
• Main bedroom and fully-tiled dual shower ensuite
• Large second bedroom, fully tiled main bathroom
• Substantial paved alfresco area/double carport
• Low-maintenance landscaped outdoor environs
Current day spaces on immediate appeal, matched by rewarding scope to refresh, renovate or re-invent in a position of exceptional bayside lifestyle appeal.
Disclaimer: All information provided has been obtained from sources we believe to be accurate, however, we cannot guarantee the information is accurate and we accept no liability for any errors or omissions (including but not limited to a property's land size, floor plans and size, building age and condition). Interested parties should make their own enquiries and obtain their own financial and legal advice.
